Gemütliches Einfamilienhaus mit atmosphärischer Scheune und Garten in Schwanheim
Eckdaten
- Art Einfamilienhaus
- Lage 64625 Bensheim
- Kaufpreis 499.000,00 €
- Wohnfläche ca. 125 m²
- Grundstück ca. 550 m²
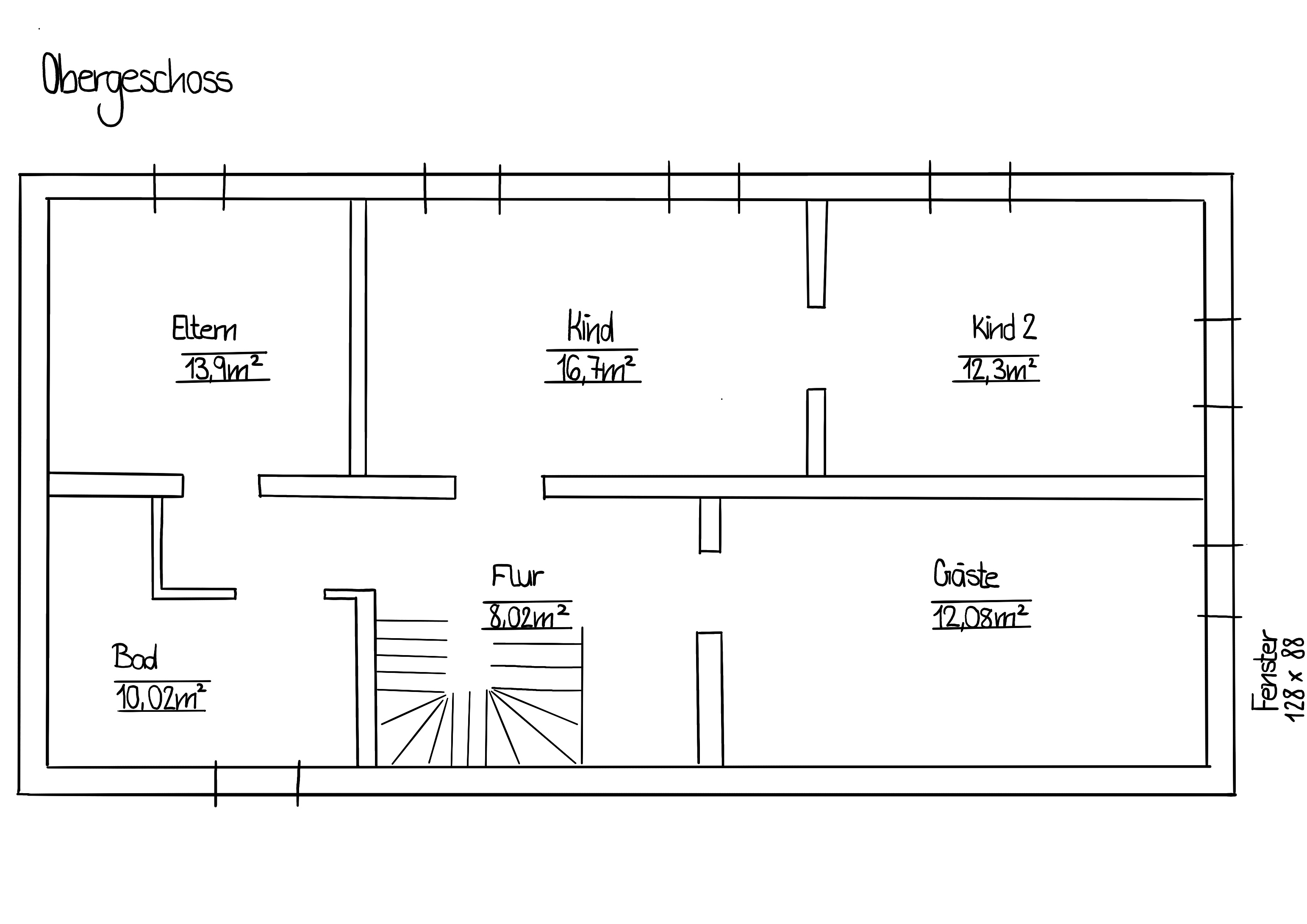
- Zimmer 4
- Baujahr 1920
- Heizungsart Zentralheizung
- Einbauküche ja
- Gäste-WC ja
- Bezugstermin sofort
- Immobilien-ID KA202532
- Provision 3,57 % inkl. MwSt.
Immobilie
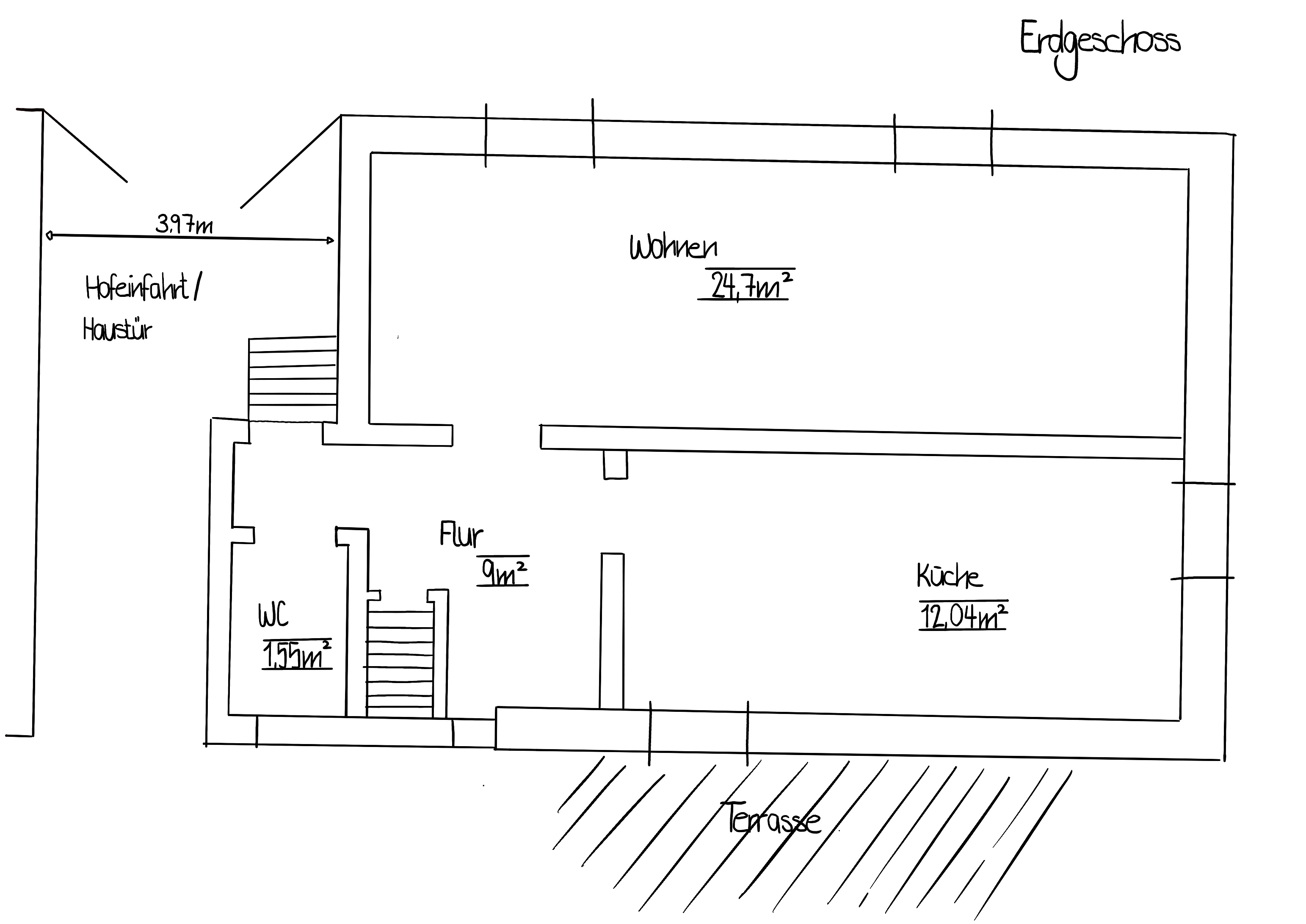
– ruhige, ländliche Wohnlage in Schwanheim-Bensheim
– massive Bauweise mit Satteldach
– Dach mit Ausbaupotential
– helle und einladende Innenbereiche mit freundlicher Atmosphäre
– lichtdurchflutetes Wohn- Esszimmer
– Kamin mit gemütlichem Flair
– großzügiges Tageslicht Badezimmer
– Waschen im Obergeschoss
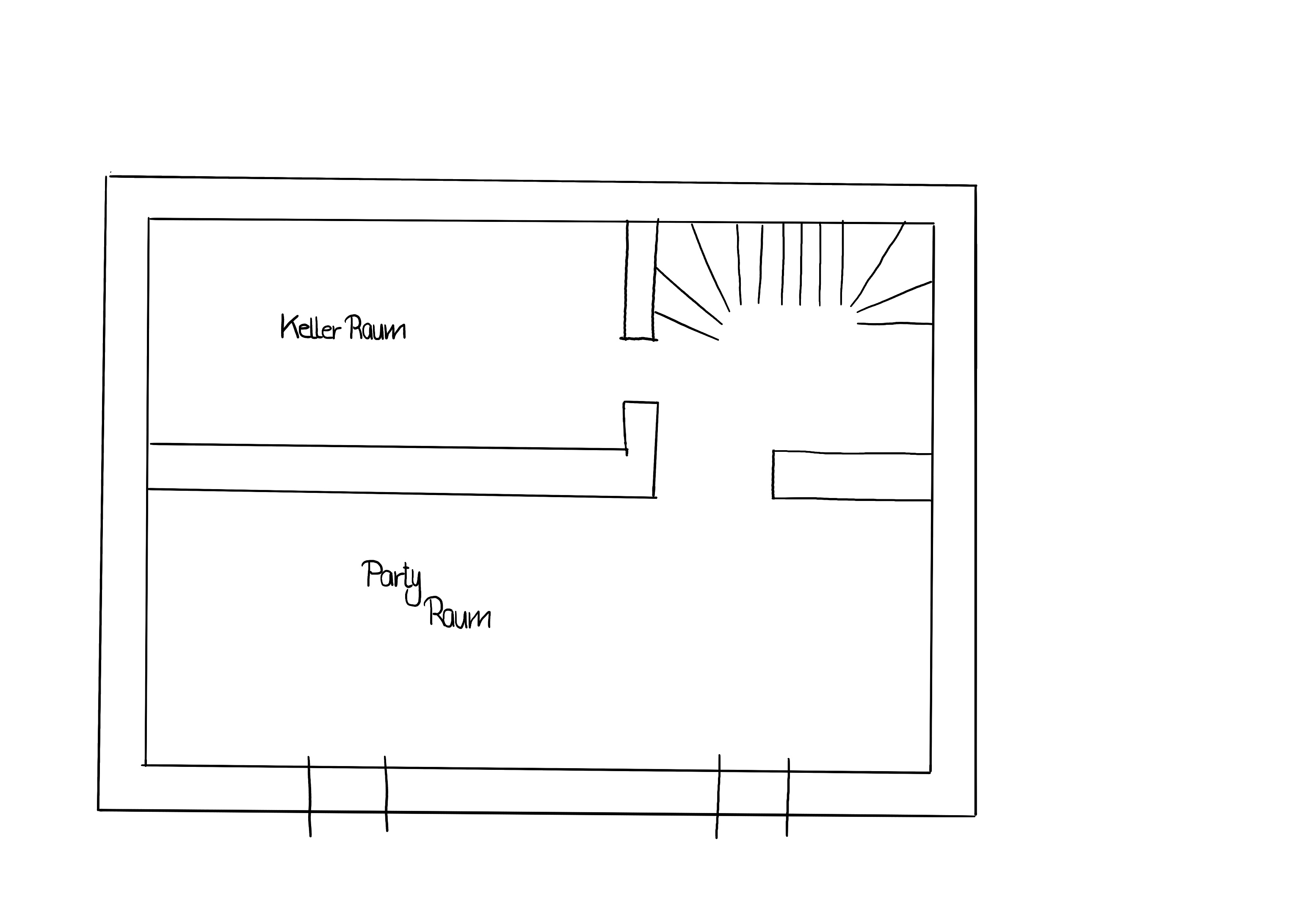
– Hobbyraum im Untergeschoss
– Fernsehanschluss über SAT-Anlage
– riesiger Innenhof mit viel Potential
– geräumige Scheune zur Privaten Nutzung und mit Ausbaupotential
– schöner Garten an die Scheune angeschlossen
Modernisierungen
– Fenster Bj. 1980
– Dach Bj. 2004
– Innenausbau Wände/Decken/Böden Bj. 2018
– Heizung inkl. Installationen Bj. 2018
– Bäder inkl. Installationen Bj. 2018
– Elektroinstallation Bj. 2018
Wegeflächen, Treppenanlage, Zufahrt:
Betonpflaster, Fliesen
Gartenanlage und Pflanzflächen:
Wiese, Baum, Sträucher
Einfriedung:
Mauer
Lage
Die Stadt Bensheim liegt an der Bergstraße in Hessen und zählt rund 43.000 Einwohner und gilt somit als die größte Stadt des Kreises. Sie ist vor allem für ihren Weinbau, das große Winzerfest und die schöne Altstadt mit vielen Fachwerkhäusern bekannt. In Bensheim gibt es zahlreiche Bildungsangebote, darunter mehrere Grund- und weiterführende Schulen sowie Berufsschulen. Auch für die Betreuung von Kindern ist gut gesorgt, Kindergärten und Betreuungseinrichtungen sind vielfältig vorhanden. Die Verkehrsanbindung ist hervorragend: Direkt an der A5 gelegen und nur wenige Autominuten von der A67 entfernt, ebenfalls sind Städte wie Frankfurt, Mannheim und Heidelberg über den Bahnhof schnell zu erreichen.
Kulturell bietet die Stadt viel Abwechslung – mit Theater, Konzerten, Ausstellungen und traditionellen Festen. Wer gerne einkauft, findet in der Innenstadt zahlreiche Läden, Boutiquen und Wochenmärkte. Für die Freizeitgestaltung gibt es viele Möglichkeiten: Sportanlagen, Wander- und Radwege, ein Schwimmbad sowie Parks und Spielplätze. Die Nähe zur Natur und der Odenwald machen Bensheim besonders attraktiv für Erholungssuchende. Insgesamt bietet die Stadt eine ausgewogene Mischung aus Bildung, Kultur, Natur und Lebensqualität. Weitere Informationen zu lesen unter www.bensheim.de.
Schwanheim mit ca. 1.360 Einwohnern ist ein Ortsteil von Bensheim und liegt ca. 4 km in westlicher Richtung. In wenigen Autominuten erreichen Sie das Stadtzentrum Bensheim. Kindergarten, Gastronomie und eine Bäckerei befinden sich Vorort. Der Kindergarten der sich in Schwanheim befindet und man kann sich über die Ev. Kirchengemeinde Schwanheim anmelden. Die Grundschule im 1 km entfernten Nachbarort Fehlheim wird vom Schulbus angefahren. Die Autobahnanschlüsse A 5 und A 67 sind ebenfalls rasch zu erreichen
Ausstattung
Heizung
Gas-Zentralheizung, Kamin für feste Brennstoffe
Fenster
Kunststoff-Isolierverglasung, Rollläden im EG
Wände/Decken
Putz mit Anstrich
Türen
Furniertüren, weiß
Fußböden
Fliesen, Laminat
Sanitäre Einrichtungen:
WC im EG: Waschbecken, WC
Bad im OG: Waschtisch, WC, Badewanne, Dusche
Energieausweisangaben
- Heizungsart Zentralheizung
- Befeuerung / Energieträger Gas
Rechtliches
Für Gespräche, Zusendung von Exposés und Verhandlungen entstehen Ihnen keinerlei Kosten. Das Nachweis- bzw. Vermittlungshonorar beträgt bei Ankauf 3 % der Kaufsumme zzgl. 19 % MwSt. verdient und fällig bei notarieller Beurkundung. Wir haben einen provisionspflichtigen Maklervertrag in gleicher Höhe mit dem Verkäufer abgeschlossen (§ 656c BGB).
Herzlichen Dank für Ihre Anfrage.
Wir werden diese so schnell wie möglich bearbeiten.




Neueste Kommentare