Gepflegte Doppelhaushälfte mit sonniger Dachterrasse in Schönberg
Eckdaten
- Art Doppelhaushälfte
- Lage 64625 Bensheim
- Kaufpreis 359.000,00 €
- Wohnfläche ca. 104 m²
- Grundstück ca. 292 m²
- Zimmer 3
- Baujahr 2000
- Nutzfläche ca. 67 m²
- Heizungsart Zentralheizung
- Einbauküche ja
- Bezugstermin sofort
- Immobilien-ID KA202601
- Provision 3,57% inkl. MwSt.
Immobilie
– praktische Lage mit guter Erreichbarkeit
– komplett eigenständige Doppelhaushälfte in WEG-Teilung
– zweigeschossige Bauweise in massiver Ausführung
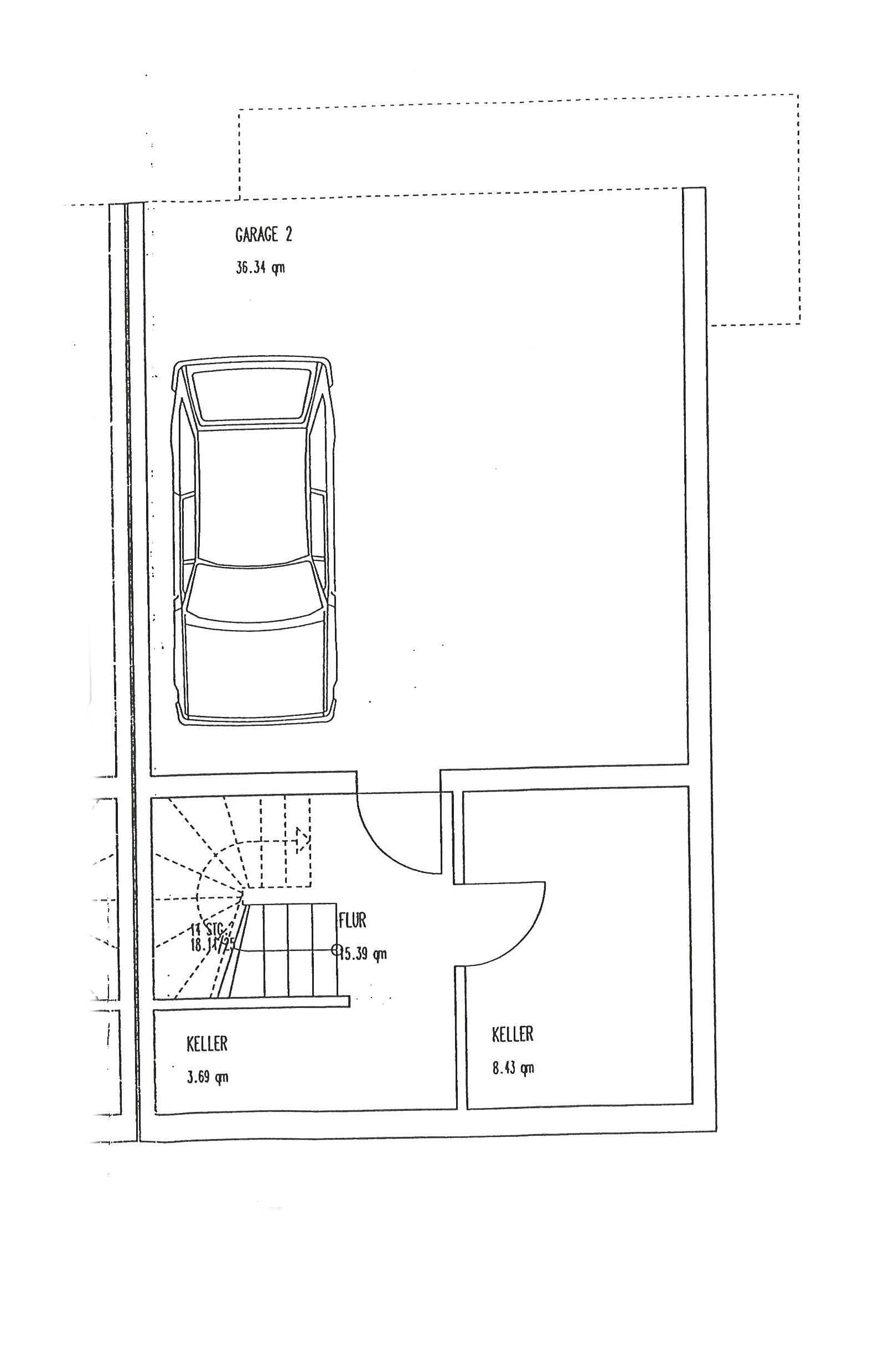
– Untergeschoss ebenerdig mit Garagenzufahrt
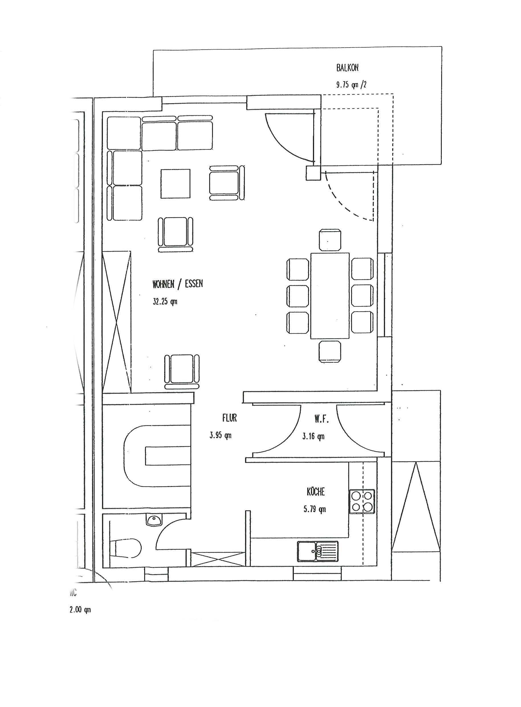
– Erdgeschoss als Wohnetage
– Dachgeschoss ausgebaut
– offenes Wohnen-Essen mit angrenzender Küche und Balkon
– Einbauküche mit deutschen Marken Elektrogeräten im Kaufpreis enthalten
– helles Gäste-WC
– massives Treppenhaus
– geräumiges Tageslichtbad mit Dusche und Wanne
– Schlafzimmer mit Ankleide und weiteres Zimmer
– zusätzlich Abstellkammer im Obergeschoss
– kleine Galerie als Office mit Zugang zur sonnigen Dachterrasse nach Süd-Westen
– Untergeschoss als Stauraum und Doppelgarage mit direktem Hauszugang
Lage
Die Stadt Bensheim liegt an der Bergstraße in Hessen und zählt rund 43.000 Einwohner und gilt somit als die größte Stadt des Kreises. Sie ist vor allem für ihren Weinbau, das große Winzerfest und die schöne Altstadt mit vielen Fachwerkhäusern bekannt. In Bensheim gibt es zahlreiche Bildungsangebote, darunter mehrere Grund- und weiterführende Schulen sowie Berufsschulen. Auch für die Betreuung von Kindern ist gut gesorgt, Kindergärten und Betreuungseinrichtungen sind vielfältig vorhanden. Die Verkehrsanbindung ist hervorragend: Direkt an der A5 gelegen und nur wenige Autominuten von der A67 entfernt, ebenfalls sind Städte wie Frankfurt, Mannheim und Heidelberg über den Bahnhof schnell zu erreichen.
Kulturell bietet die Stadt viel Abwechslung – mit Theater, Konzerten, Ausstellungen und traditionellen Festen. Wer gerne einkauft, findet in der Innenstadt zahlreiche Läden, Boutiquen und Wochenmärkte. Für die Freizeitgestaltung gibt es viele Möglichkeiten: Sportanlagen, Wander- und Radwege, ein Schwimmbad sowie Parks und Spielplätze. Die Nähe zur Natur und der Odenwald machen Bensheim besonders attraktiv für Erholungssuchende. Insgesamt bietet die Stadt eine ausgewogene Mischung aus Bildung, Kultur, Natur und Lebensqualität. Weitere Informationen zu lesen unter www.bensheim.de.
Schönberg ist ein 3 km östlich gelegener Stadtteil mit ca. 800 Einwohner von Bensheim. Das Ortsbild von Schönberg wird von dem auf der Berghöhe liegenden Schloss geprägt. Ein Kindergarten, ein Bäcker und eine Bank befinden sich im Ort. Bensheims Innenstadt und die Autobahn erreichen Sie in ca. 5 Minuten, die Stadtbusanbindung bringt Sie im 20 Minuten Takt zum Bensheimer Bahnhof. Die Nähe zum Odenwald, aber auch die kurzen Wege zur Autobahn oder auch in die nahegelegenen größeren Städte wie Darmstadt, Frankfurt, Mannheim und Heidelberg bietet Familien, Berufstätigen, Naturliebhabern und Ruhesuchenden ein Zuhause.
Ausstattung
Heizung:
Gas-Zentralheizung
Fenster:
Kunststoff-Isolierverglasung mit Rollläden, teilweise elektrischen
Wände/Decken:
Putz, Raufaser mit Anstrich
Fußböden:
Laminat, Parkett, Fliesen
Sanitäre Einrichtungen:
Bad EG: Waschbecken, WC
Bad OG: Waschbecken, WC, Badewanne, Dusche, Waschmaschinenanschluss
Energieausweisangaben
- Heizungsart Zentralheizung
- Befeuerung / Energieträger Gas
Rechtliches
Für Gespräche, Zusendung von Exposés und Verhandlungen entstehen Ihnen keinerlei Kosten. Das Nachweis- bzw. Vermittlungshonorar beträgt bei Ankauf 3 % der Kaufsumme zzgl. 19 % MwSt. verdient und fällig bei notarieller Beurkundung. Wir haben einen provisionspflichtigen Maklervertrag in gleicher Höhe mit dem Verkäufer abgeschlossen (§ 656c BGB).
Herzlichen Dank für Ihre Anfrage.
Wir werden diese so schnell wie möglich bearbeiten.





Neueste Kommentare