Helles Reihenendhaus in Split-Level-Bauweise mit innenliegender Garage & schönem Garten
Eckdaten
- Art Reihenendhaus
- Lage 69151 Neckargemünd
- Kaufpreis 325.000,00 €
- Wohnfläche ca. 118 m²
- Grundstück ca. 300 m²
- Zimmer 5
- Baujahr 1992
- Nutzfläche ca. 36 m²
- Heizungsart Zentralheizung
- Stellplatztyp Garage
- Bezugstermin sofort
- Immobilien-ID KA202506
- Provision 3,57 % inkl. MwSt. inkl. MwSt.
Immobilie
– Dilsberg liegt im schönen Neckartal
– Lage 10 km östlich von Heidelberg
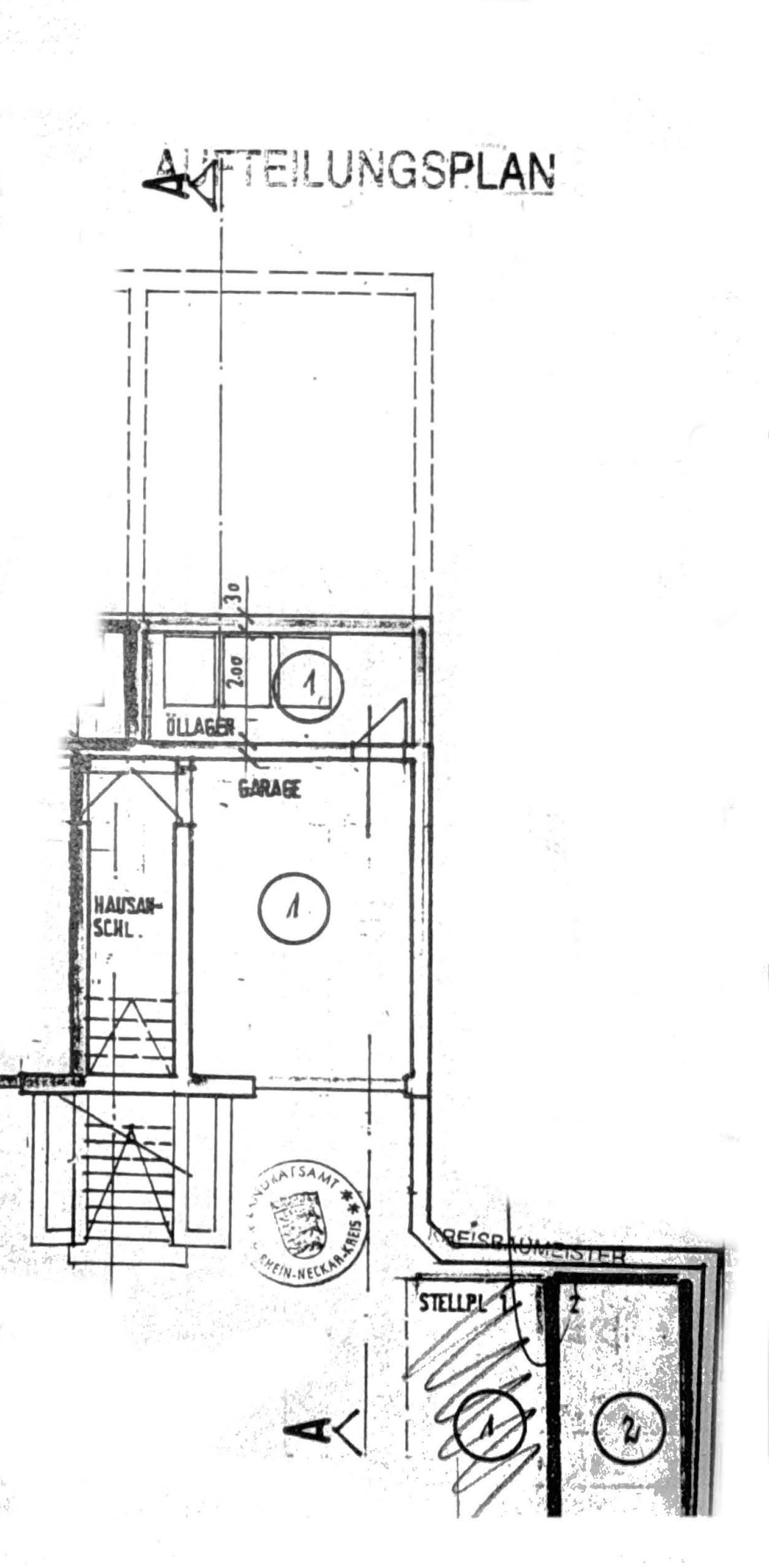
– Reihenendhaus einer Dreiergruppe nach WEG geteilt
– massive Bauausführung als Split-Level
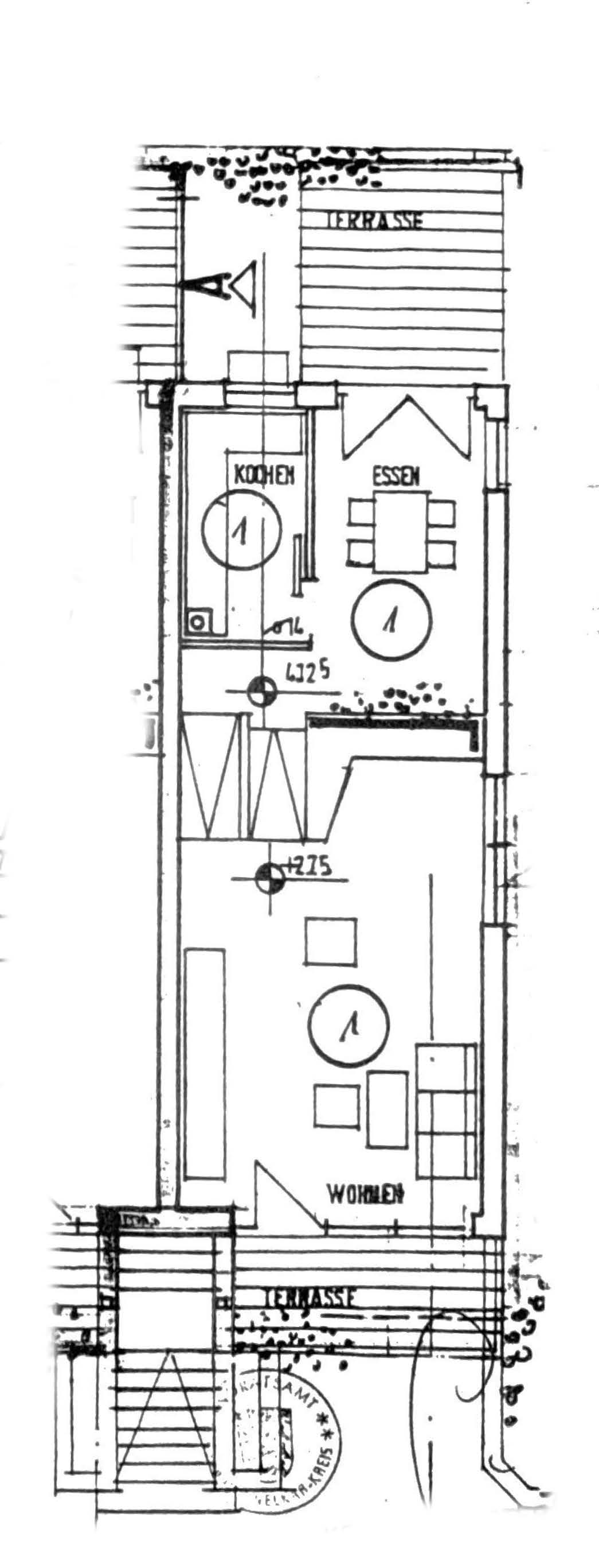
– zweigeschossige Bauweise mit Satteldach
– helle und freundliche Räume
– zweckmäßiger Grundriss
– offener Wohn-/Essbereich mit Balkon
– schöner Gartenbereich mit Terrasse nach Süd-Osten
– zwei Balkone in West-Ausrichtung
– renovierungsbedürftiger Zustand
– innenliegende Garage ohne direkten Hauszugang
– Außenstellplatz vor dem Haus
Modernisierungen:
– Heizung Bj. 2015
Lage
Dilsberg ist eine historischer Ortsteil der Neckargemünd im Rhein-Neckar-Kreis. Der kleine Bergort liegt malerisch auf einem Höhenrücken über dem Neckertal und ist vor allem durch die gut erhaltene Bergfeste Dilsberg bekannt. Innerhalb der ehemaligen Stadtmauern prägen enge Gassen, Fachwerkhäuser und mittelalterliches Flair das Ortsbild. Von der Festung aus bietet sich ein weiter Blick über das Neckartal und den Odenwald. Heute ist Dilsberg ein ruhiger Wohn- und Ausflugsort mit besonderem historischem Charme. Dilsberg liegt ruhig oberhalb des Neckartals und hat keinen direkten Autobahnanschluss, ist aber über Landstraßen gut angebunden.
Ausstattung
Heizung:
Öl-Zentralheizung
Fenster:
Holz-Isolierverglasung mit Rollläden
Wände/Decken:
Raufaser und Putz mit Anstrich
Türen:
Holz
Fußböden:
Fliesen, Laminat
Sanitäre Einrichtungen:
Bad EG: Waschbecken, WC, Dusche
Bad DG: Waschbecken, WC, Badewanne, Dusche
Energieausweisangaben
- Heizungsart Zentralheizung
- Befeuerung / Energieträger Öl
Rechtliches
Für Gespräche, Zusendung von Exposés und Verhandlungen entstehen Ihnen keinerlei Kosten. Das Nachweis- bzw. Vermittlungshonorar beträgt bei Ankauf 3 % der Kaufsumme zzgl. 19 % MwSt. verdient und fällig bei notarieller Beurkundung. Wir haben einen provisionspflichtigen Maklervertrag in gleicher Höhe mit dem Verkäufer abgeschlossen (§ 656c BGB).
Herzlichen Dank für Ihre Anfrage.
Wir werden diese so schnell wie möglich bearbeiten.






Neueste Kommentare